Porzione di bifamiliare in vendita

Bacoli, Via Cuma Licola
€ 425.000
9 locali 9 locali
300 Mq 300 Mq
2 bagni 2 bagni

Porzione di bifamiliare in vendita

Bacoli, Via Cuma Licola

Descrizione annuncio

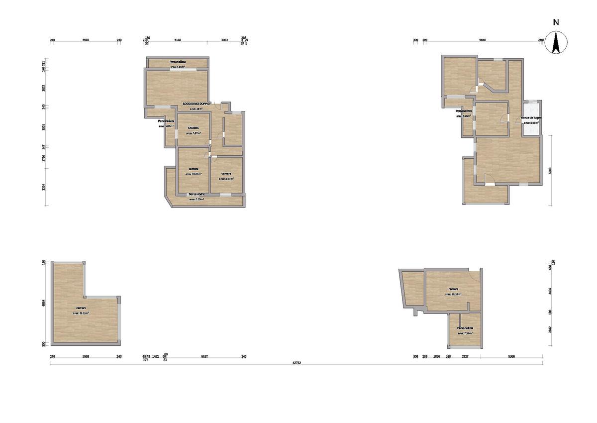
Situata in una zona tranquilla e riservata, più precisamente in Via Cuma Licola proponiamo in vendita SOLUZIONE BIFAMILIARE di ampia quadratura con giardino. Essa si sviluppa su due livelli, offrendo spazi ampi e funzionali ideali per famiglie numerose o per chi desidera vivere in comodità e privacy.

La proprietà comprende due unità abitative distinte, con caratteristiche e stati di manutenzione differenti.

La prima abitazione, pronta da vivere, si presenta in ottime condizioni ed è già completamente abitabile. Dispone di tre camere da letto spaziose, soggiorno doppio con angolo cottura, ripostiglio e bagno.

La seconda abitazione, attualmente da ristrutturare, rappresenta un’opportunità interessante per personalizzare gli spazi secondo le proprie esigenze o per eventuali investimenti futuri. Dispone di due camere da letto, soggiorno doppio, cucina abitabile e bagno.

La proprietà presenta un'ottima luminosità grazie alla sua tripla esposizione con ampie balconate.

Esternamente, la proprietà vanta di doppia tavernetta esterna, un ampio giardino privato di circa mille metri quadrati, ideale per momenti di relax, giochi all’aperto o per ospitare amici e familiari.

Il cancello automatico garantisce privacy e sicurezza, oltre a uno spazio di parcheggio capiente dove è possibile posteggiare numerose auto senza difficoltà.

In sintesi, questa bifamiliare rappresenta un’ottima soluzione per chi cerca ampi spazi abitativi, indipendenza e un grande spazio esterno, con la possibilità di personalizzare e adattare gli ambienti alle proprie esigenze di vita.

Immobile visionabile previo avviso telefonico.

Per scoprire il potenziale di questa splendida soluzione contatta 081.182.57.137 Tecnocasa Bacoli.

Presso la nostra Agenzia TECNOCASA è possibile, su richiesta, grazie ai professionisti della società di mediazione creditizia del gruppo KIRON, ricevere una consulenza ed accedere ad un' ampia gamma di prodotti creditizi e assicurativi.

LA CONSULENZA E' GRATUITA

Vuoi conoscere il valore del tuo immobile?

Richiedi presso i nostri uffici una VALUTAZIONE GRATUITA CERTIFICATA.

Mostra tutto

Nelle vicinanze

Trasporto pubblico Trasporto pubblico
Cuma
Cuma
1,1 Km
Lido Fusaro
Lido Fusaro
1,4 Km
Trasporto pubblico
30 m
Via Cuma Licola
Via Cuma Licola
740 m
Scuole Scuole
Bacoli I.C. 2 Plinio Bellavista
3,0 Km
Farmacia Farmacia
Farmacia dell'Arco
2,2 Km
Farmacia del Porto
2,9 Km
Farmacia Monteruscello
3,0 Km
Ospedali Ospedali
Ospedale La Schiana
1,8 Km
Supermercati Supermercati
Vibian Supermercato
1,0 Km
MD Discount
1,5 Km
Alimentari Illiano
2,5 Km
Crai Zuccariello
2,6 Km
Panificio Merone Pasquale
2,6 Km
Negozi Negozi
Valery Moda
2,4 Km
Memily Kids
2,5 Km
Minu
2,5 Km
Il Piccolo Forno
2,7 Km
Negozi
2,9 Km
Bar Bar
Nereis
2,7 Km
BBC Bay Beach Club
2,7 Km
Ideal Bar
2,8 Km
Bar
2,9 Km
Crudo Bar Baia
3,0 Km
Ristoranti Ristoranti
Ristoranti
140 m
Abraxas
1,6 Km
Antichi Sapori Ristorante
1,6 Km
Caronte
2,1 Km
Old Friends
2,2 Km
Mostra tutto

Caratteristiche

Rif.:
61144607
Piano:
2 di 2 (Piano su più livelli)
Posti auto:
4
Balconi:
5
Camere da letto:
5
Arredamento:
Assente
Mostra tutto
Prezzo Prezzo
€ 425.000
Rata mutuo Rata mutuo
€ 1.980 / mese
Spese annue Spese annue
€ 0
Proponi il tuo prezzoProponi il tuo prezzo

Classe Energetica

G
G
G
G
G
G
G
G
G
EP globale non rinnovabile:
175.00 kW h/m² anno
EP globale rinnovabile:
175.00 kW h/m² anno
EP invernale del fabbricato:
EP estiva del fabbricato:
Anno di costruzione:
1984
Riscaldamento:
Autonomo
Tipo impianto:
A radiatori
Tipo alimentazione:
Metano

Ti interessa visionare l'immobile?

Fissa un appuntamento  Fissa un appuntamento

Richiedi informazioni

Clicca su Leggi per aprire l'informativa
* Questi campi sono obbligatori

Calcola il tuo mutuo

Semplice e senza impegno
Anticipo

( % )
Mutuo

( % )

pochi semplici passi

inserisci i tuoi dati
Questionario completato
Grazie per aver richiesto un appuntamento senza impegno con un nostro Consulente del Credito e Assicurativo.

Hai inserito correttamente tutti i dati necessari e a breve riceverai una e-mail con un link da convalidare per inviare i tuoi dati.
Affiliato
Cosmico Case Srl
Via Gaetano De Rosa, 104 80070 Bacoli (NA)

Il nostro staff


  • Davide Cosentino
    Affiliato

  • Martina Lieto
    Coordinatrice

  • Gianluca Santangelo
    Collaboratore

  • Nicola Santangelo
    Responsabile

  • Mario Spanò
    Collaboratore

  • Roberta Esposito
    Collaboratrice

  • Alexandra Isernia
    Collaboratrice
Via Gaetano De Rosa, 104 80070 Bacoli (NA)
Zona: Bacoli
Mostra su mappa
Orari: Dal lunedì al venerdì dalle 9.00 alle 20.00 Sabato dalle ore 9.00 alle ore 18.00 Domenica su appuntamento dalle 10.00 alle 12.00
Affiliato
Cosmico Case Srl
Via Gaetano De Rosa, 104 80070 Bacoli (NA)

2025 Tecnocasa Franchising S.p.A. - P. IVA 08365160152 - Via Monte Bianco 60/A 20089 Rozzano (MI). Ogni agenzia ha un proprio titolare ed è autonoma. Privacy policy | Policy utilizzo | Cookie policy